Nhà vườn cấp 4 hiện đại, không gian sống tinh tế khoa học, đáp ứng nhu cầu cuộc sống sinh hoạt là tiêu chi được nhiều người lựa chọn. Nếu bạn đang tìm kiếm và yêu thích mẫu thiết kế những ngôi nhà vườn đơn giản, tinh tế hãy theo dõi bài chia sẻ của chúng tôi. Tại đây, bạn sẽ có thêm những ý tưởng để hoàn thiện thiết kế ngôi nhà cho gia đình mình trong tương lai.
Một hình ảnh 3D đã có đủ khả năng thể hiện kiến trúc của một công trình. Bởi vậy, việc chúng ta cần làm chính là điểm qua một vài phối cảnh 3D những mẫu nhà vườn cấp 4 đang được ưa chuộng. Với những hình ảnh này, bạn sẽ dễ dàng tìm được hướng đi cho ngôi nhà của chính mình.
Những ngôi nhà mái thái luôn toát lên vẻ tinh tế hiện đại ngay từ cái nhìn đầu tiên. Thế nên trong năm 2019, ngôi nhà vườn dạng cấp 4 luôn có đủ sức hấp dẫn làm mê đắm nhiều gia đình. Ngôi nhà thiết kế đề cao sự đơn giản, tinh tế đã tạo nên sự phá cách, độc đáo.

Ngôi nhà đề cao phong cách tối giản
Sảnh chính nối với khu vườn bằng một bể bơi mini. Thảm cỏ xen kẽ nền đá tạo nên nét đẹp hiện đại và phòng khoáng. Mặt tiền ngôi nhà không cầu kỳ, tận dụng chất liệu cửa kính làm điểm nhấn. Đặc biệt, với khu vực sân trước rộng, chúng ta có thể kê thêm bàn ghế tạo không gian sinh hoạt ngoài trời.
Bạn nghĩ sao về một ngôi nhà vườn nằm dưới bóng cây, phía trước là một chiếc bể bơi theo phong cách hiện đại? Chắc chắn rồi, đây là một trong những mẫu nhà vườn cấp 4 đẹp vô cùng lý tưởng để hưởng thụ và cảm nhận những điều tuyệt vời của cuộc sống.

Nhà vườn lấy chất liệu kính làm điểm nhấn
Trên đây là một ngôi nhà vườn cấp 4 sử dụng chất liệu kính là chủ đạo. Dễ thấy rằng, việc loại bỏ các bức tường gạch thay bằng chất liệu kính rất phù hợp với không gian cây xanh và bãi cỏ. Đặc biệt, chất liệu kính còn là chất xúc tác tuyệt vời để tăng vẻ tinh tế và hiện đại cho ngôi nhà.
Tổng thể kiến trúc hao hao hình chữ U. Ở phần giữa là một khoảng sân gạch nhỏ nhằm liên kết giữa các mặt tiền không gian chung. Tại đây, bạn có thể lắp thêm một chiếc xích đu nho nhỏ để cho bé chơi. Hoặc một bộ bàn ghế để cả nhà cùng quây quần uống trà ngắm bình minh mỗi sớm.
Nếu gia đình bạn có đông thành viên, việc thiết kế mẫu nhà vườn cấp 4 5 phòng ngủ là sự gợi ý rất đáng để cân nhắc. Trong khi đó, việc sở hữu một mảnh đất rộng sẽ thật đáng tiếc nếu không thiết kế một ngôi nhà nhiều phòng.

Ngôi nhà bước ra từ những câu chuyện cổ tích
Nhìn phối cảnh mẫu nhà trên điều đầu tiên chúng ta cảm nhận chính là sự ấn tượng và thu hút. Ngôi nhà tạo cảm giác cho chúng ta như đang lạc vào thế giới các câu truyện cổ tích với những tòa lâu đài. Thiết kế mặt tiền khá lạ mắt và độc đáo. Toàn bộ tường và cột đều được ốp bằng gạch thiên về nghệ thuật. Đồng thời tạo nên nét cổ kính ngay trong ngôi nhà hiện đại.
Đương nhiên rồi mọi không gian sinh hoạt nhà vườn sẽ nằm trên một mặt phẳng. Thế nên điều quan trọng nhất trong thiết kế mặt bằng kiến trúc chính là tính khoa học và hợp lý.

Tham khảo mặt bằng kiến trúc
Ngôi nhà trên thiết kế có tổng ba phòng ngủ nằm liền kề, một phòng khách liên thông, để mở với khu vực bếp và bàn ăn. Khi bước vào trong căn nhà chúng ta sẽ cảm nhận được rõ ràng sự thoáng đãng của không gian. Ngoài ra, với ngôi nhà trên chúng ta còn có khu vực sân phơi và để máy giặt.
Hoặc nếu muốn bạn cũng có thể thiết kế thêm nhà vườn cấp 4 mái thái có gác lửng. Với thiết kế này chúng ta có thể biến gác lửng thành một thế giới riêng khác với phong cách không gian sinh hoạt còn lại.

Mặt bằng nhà vườn cấp 4 có thêm gác lửng
Nhà vườn có thêm gác lửng luôn tạo nên sự khác biệt và độc đáo. Vì vậy trong những năm gần đây nhiều gia đình tìm đến chúng tôi để thiết kế thi công nhà vườn có gác lửng.

Tham khảo mặt bằng tầng lửng nhà vườn
Trong thiết kế mặt bằng công năng sử dụng, chúng tôi luôn chú trọng đến tính khoa học hợp lý. Vì một ngôi nhà dù có sở hữu mặt tiền đẹp, hào nhoáng nhưng không gian sinh hoạt không khoa học lại là điểm trừ và dẫn đến sự thất bại trong thiết kế thi công. Đặc biệt, một bản thiết kế thành công không thể xảy ra tình trạng thừa hoặc thiếu không gian, ảnh hưởng đến cuộc sống sinh hoạt về sau.

Tham khảo mặt bằng công năng
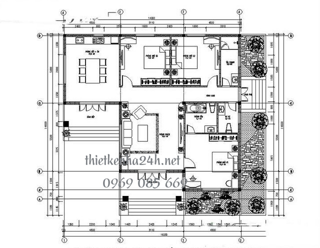
Hình ảnh là mẫu nhà vườn cấp 4 đẹp đang làm mưa làm gió trong năm 2019. Ngôi nhà có sự hiện diện của ba phòng ngủ hai nhà vệ sinh. Khu vực bếp nấu thiết kế riêng biệt với bàn ăn. Trong khi đó phòng khách lại liên thông khu vực bàn ăn. Từ đó, không gian sinh hoạt chung cũng được nới rộng thêm.

Thiết kế mặt bằng công năng nhà chữ L
Dễ thấy rằng nhà chữ L dễ dàng hơn trong việc bố trí không gian. Từ phòng khách trở vào không gian nghỉ ngơi đều nằm gọn ở phía tay phải. Phòng ngủ chính thiết kế hành làng đi ra phòng ngủ phụ cùng các không gian sinh hoạt chung. Việc tạo ra một hành lang giúp tăng độ thoáng cho ngôi nhà hiệu quả khi mà phòng ngủ thiết kế liền kề.
Nhìn chung mỗi một mẫu nhà vườn cấp 4 khác nhau việc sắp xếp không gian cũng có sự khác biệt. Tuy nhiên khi thiết kế nhà mặt bằng công năng hoàn chỉnh, hiện đại và tiện nghi nên đặt làm tiêu chí hàng đầu. Từ đó, việc sở hữu một ngôi nhà tiện nghi, đáp ứng nhu cầu sinh sống về sau luôn nằm trong tầm tay.
Dự toán kinh phí thiết kế thi công nhà vườn cấp 4 là việc làm quan trọng và không thể thiếu. Thông qua dự tính bạn sẽ chủ động hơn trong việc chuẩn bị kinh phí. Nhưng chúng ta không thể phủ nhận, ở mỗi một khu vực chi phí vật liệu và thuê nhân công có sự khác biệt rõ ràng. Hơn hết ở mỗi mẫu nhà vườn cấp 4 khác nhau chi phí cũng khác nhau.
Chúng ta có thể thiết kế và xây dựng một ngôi nhà vườn với nhiều mức giá khác nhau. Ví dụ: 300 triệu, 600 triệu, 1 tỷ,… Chi phí dù cao hay thấp đều tùy thuộc vào nhu cầu của khách hàng. Vì vậy phương án khả quan nhất khi bạn muốn nắm chính xác kinh phí là liên hệ chúng tôi để được dự tính kinh phí chính xác nhất.
Đồng thời hãy cung cấp cho chúng tôi về mẫu nhà mà bạn mong muốn sở hữu cùng với số tiền mà bạn đang có. Dựa trên những thông tin ấy, chúng tôi sẽ thiết kế nhà vườn cấp 4 phù hợp, sau đó dự tính kinh phí chính xác và hợp lý nhất.
Thiết kế thi công nhà vườn dạng cấp 4 đang là trào lưu và xu hướng tại nước ta tại các vùng nông thôn và ngoại thành. Cuộc sống sẽ vô cùng thoải mái và dễ chịu nếu bạn sở hữu một ngôi nhà tiện nghi, không gian sinh hoạt thoáng đãng.
Đó chính là lý do vì sao ngay hôm nay khi có ý định thiết kế thi công nhà vườn cấp 4 bạn hãy liên hệ chúng tôi – Công ty cổ phần đầu tư và xây dựng Chất uy. Với kinh nghiệm và sự nhiệt tình và trách nhiệm chúng tôi xin cam kết mang đến sự hài lòng cho quý khách hàng. Để biết thêm thông tin chi tiết về các mẫu nhà, vui lòng liên hệ chúng tôi sớm nhất: thietkenha24h.net.
HOLINE: 0969.085.669 - 0969.835.669
Nhận xét về sản phẩm
Sản phẩm cùng loại