Mẫu nhà cấp 4 mái thái sang trọng đang là sự lựa chọn của rất nhiều gia đình hiện nay. Các kiểu nhà cấp 4 mái thường đáp ứng được nhiều nhu cầu và mong muốn của gia chủ như mang đến không gian sống thoải mái, hiện đại và vẫn mang tính thẩm mỹ cao. Dưới đây chúng tôi sẽ giới thiệu đến các bạn mẫu nhà cấp 4 mái thái sang trọng tại Đắc Lắc đang nhận được rất nhiều sự quan tâm hiện nay.
Mái thái được xây dựng rất nhiều trong những mẫu nhà cấp 4 hiện đại ngày nay. Thế nhưng đa phần đều là những mẫu thiết kế mái thái đơn giản, có độ dốc vừa phải và màu sắc trang nhã. Tuy nhiên với mẫu nhà cấp 4 sang trọng tại Đắc Lắc này lại lựa chọn kiểu thiết kế mái khá cầu kỳ và phức tạp. Các phần mái thái được xếp kế tiếp nhau tạo sự chuyển nổi khá đặc biệt, khiến cấu trúc tổng thể của căn nhà trở nên nguy nga và sang trọng hơn rất nhiều.
Ngoài ra thì thiết kế mái thái với độ dốc khá lớn khiến căn nhà trở nên cao lớn và đẹp mắt hơn. Bên cạnh đó thì cũng giúp nước mưa thoát xuống nhanh hơn, không khiến phần mái nhà bị ngấm nước mưa gây hư hỏng.
Gia chủ của mẫu nhà cấp này cũng lựa chọn màu thái mái là màu xanh ghi vô cùng nổi bật và đặc biệt, hòa hợp với màu sắc tổng thể của căn nhà.

Thiết kế mái thái nổi bật với cấu trúc phức tạp
Gam màu chủ đạo của mẫu nhà cấp 4 mái thái sang trọng tại Đắc Lắc này là màu trắng giống với nhiều mẫu thiết kế nhà cấp 4 khác. Việc sử dụng màu trắng sẽ giúp tổng thể căn nhà có mang lại cảm giác trang nhã, nguy nga và nổi bật hơn rất nhiều. Bên cạnh đó màu trắng còn rất dễ kết hợp với các màu sắc nổi bật khác để tạo điểm nhấn cho khu vực mặt tiền của căn nhà.
Ngay khu vực mặt tiền được trang trí bởi gam màu đỏ của cửa ra vào và cửa sổ, bên cạnh đó thì sảnh nhà cũng được lát đá màu sáng vô cùng nổi bật. Các mặt tường bao quanh căn nhà cũng được trang trí bằng đá cẩm thạch màu đen mang lại cảm giác sang trọng. Các gam màu cùng chi tiết trang trí tại khu vực mặt tiền đều mang sự tinh tế và thể hiện được đẳng cấp cùng với tính sang tạo của chủ căn nhà.

Màu sắc trang nhã làm nổi bật căn nhà
Các thiết kế nhà cấp 4 mái thái thường chỉ xây dựng một tầng nên để bố trí đủ các khu vực chức năng trong căn nhà là điều rất khó khăn. Chính vì thế các kiến trúc sư cần phải có kinh nghiệm để có thể đưa ra những phương án thiết kế phù hợp nhất với mong muốn của gia chủ, cũng như thực tế mặt bằng xây dựng. ở mẫu thiết kế nhà cấp 4 mái thái tại Đắc Lắc này thì kiến trúc sư đã làm rất tốt đều đó. Căn nhà được phân chia các khu vực chức năng vô cùng hợp lý, đáp ứng đủ không gian sinh hoạt của tất cả các thành viên trong gia đình.

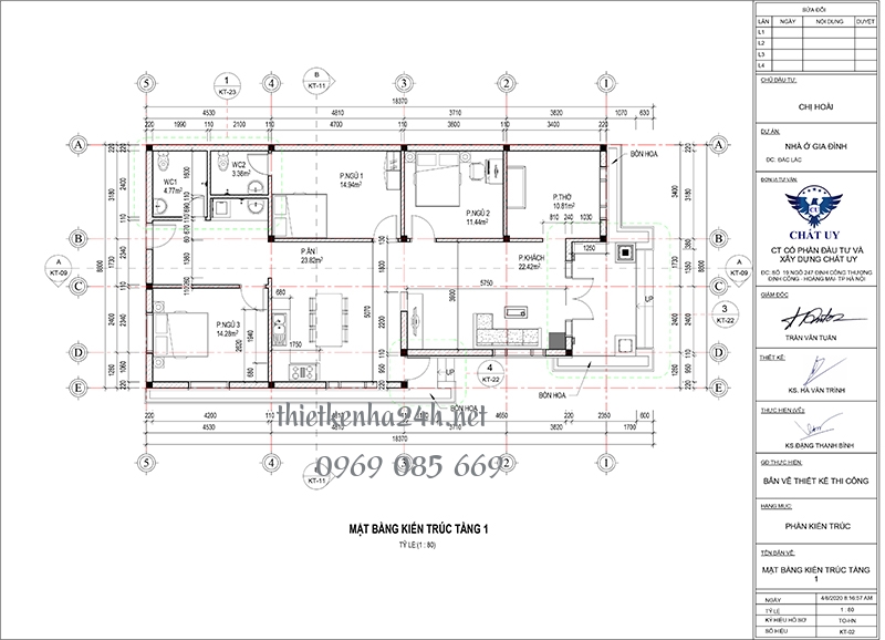
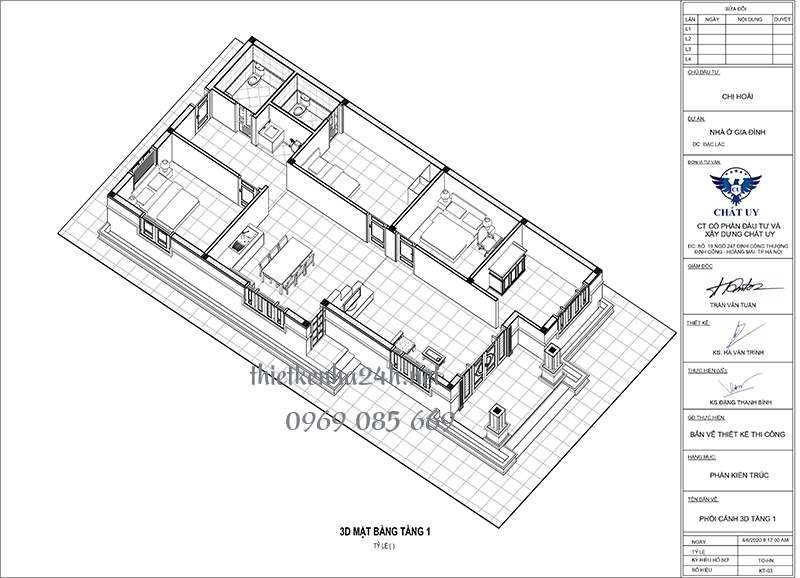
Công năng và mặt bằng tầng 1
Công năng mặt bằng taanfg1 của căn nhà gồm có những khu vực sau đây:
Trong phòng ngủ số 1 với diện tích 14.94m2 được bố trí thêm một nhà vệ sinh riêng để việc sử dụng thuận tiện hơn. Các vị trí được sắp xếp khoa học và vẫn đảm bảo sự riêng tư cho từng khu vực, tạo sự thuận lợi khi sử dụng cho các thành viên trong gia đình.

Các khu vực được bố trí khoa học, hợp lý
Như vậy, trong bài viết trên chúng tôi đã giới thiệu đến các bạn mẫu nhà cấp 4 mái thái cực sang trọng tại Đắc Lắc. Hy vọng sau khi tham khảo bài viết này các bạn sẽ có thêm nhiều kinh nghiệm trong việc thiết kế các mẫu nhà cấp 4 mái thái để có thể hoàn thiện không gian sống của gia đình mình theo đúng mong muốn.
HOLINE: 0969.085.669 - 0969.835.669
Nhận xét về sản phẩm
Sản phẩm cùng loại