Với mức chi phí không quá nhiều, việc xây dựng nhà cấp 4 là lựa chọn vô cùng tuyệt vời. Dưới bàn tay khéo léo của các kiến trúc sư, mẫu nhà cấp 4 2 phòng ngủ được thiết kế với mặt tiền vô cùng bắt mắt cùng hệ mái thái vững chắc. Dưới đây, cùng Thietkenha 24h khám phá mẫu nhà này nhé.
Chủ đầu tư: Nguyễn Huy Sinh
Địa chỉ: Quốc Oai - Hà Nội
Chủ nhà mong muốn xây dựng một không gian sống thông thoáng; mặt tiền đón được gió và ánh sáng. Vì vậy, các kiến trúc sư đã xử lý nền móng cao với 5 bậc tam cấp. Điều này giúp cho hình khối mẫu nhà cân đối, cao ráo và hài hoà hơn.

Tổng quan mẫu nhà cấp 4 2 phòng ngủ đơn giản mà đẹp
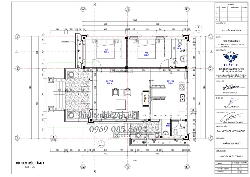
Dựa vào nhu cầu sử dụng cũng như quỹ đất mà gia đình mong muốn xây dựng để thiết kế công năng. Thiết kế với 2 phòng ngủ, phòng khách kết hợp phòng thờ, phòng bếp và khu vực vệ sinh.
Nền móng nhà cấp 4 mái thái được thiết kế khá cao và thoáng, toàn bộ chân móng được ốp gạch trang trí đem đến hiệu ứng nghệ thuật khá tươi mới và tràn ngập sắc màu. Thiết kế bậc tam cấp khá thoáng, thiết kế sảnh chính cùng với trụ cột tròn, phô diễn những đường nét thẳng khỏe khoắn, kiên cố và vững chãi của mẫu nhà lớn

Thiết kế nhà cao và thoáng với nền móng được ốp gạch
Khối hồi đua rộng phía trước cùng với kiến trúc mái thái thiết kế giật cấp cân đối, gam màu xanh dương đậm đẹp mắt, mang đến hiệu ứng thẩm mỹ chỉn chu cho toàn bộ công trình. Sử dụng cửa gỗ để thiết kế cửa chính, cùng với hệ thống cửa nhựa lõi thép có tính nghệ thuật cao. Kết hợp với màu sơn tường trung tính, một phối cảnh kiến trúc hoàn hảo, nhất quán đang điểm tô và thể hiện rõ trước mắt chúng ta.

Phần áp mái thiết kế nổi bật
Ở phần áp mái, kiến trúc sư trang trí màu sắc nâu đậm nổi bật hơn hẳn so với gam màu trắng chủ đạo tạo nên điểm nhấn. Tone nâu này cũng cùng màu với phần đá ốp bậc tam cấp và chân tường, màu cửa chính.

Hệ mái thái chữ A quay hướng khang trang
Hệ mái thái chữ A quay hướng vô cùng khang trang, tạo nên sự bề thế cho cả công trình. Kiến trúc sư còn khéo léo tạo ra một số bồn cây trước và bên hông nhà để tô điểm thêm.
Thiết kế sảnh chính cao và rộng được xem là không gian trung tâm, trung chuyển và lưu giữ, kết nối các không gian phía trong. Phòng khách được thiết kế bố trí cạnh với cửa chính, thiết kế tiếp giáp với phòng ăn và bếp nấu, được ngăn cách bằng vách ngăn hở, đảm bảo tính thẩm mĩ mà không làm không gian có sự tách biệt.
Phòng khách được thiết kế cùng với không gian thờ cúng. Vì diện tích nhà và quỹ tiền xây dựng không cho phép để tách thành phòng riêng. Tuy nhiên vẫn đảm bảo được yếu tố phong thuỷ vì không gian này khá rộng rãi.

Thiết kế mặt bằng công năng tầng 1 nhà cấp 4
Đối diện với phòng khách là phòng ngủ, phía trong cùng là phòng ngủ có nhà vệ sinh khép kín. Tất cả các không gian ngôi nhà đều được bố trí có cửa sổ thoáng mát, đảm bảo không bí bách khi sử dụng.
Từ phòng khách và phòng ăn, một hành lang giao thông trung chuyển chung được thiết lập, chạy thẳng từ phòng khách vào trong. Chính hành lang giao thông này là nơi kết nối các thành viên, phân chia bố cục chức năng. Nhà vệ sinh chung được đặt cuối nhà phía bếp, tiếp giáp với hành lang nhỏ phía bên hông nhà.

Mặt bằng 3D mẫu nhà cấp 4
Với mặt bằng công năng bố trí khoa học, thuận tiện cho việc di chuyển cũng như sinh hoạt của các thành viên.
Với các phòng chức năng đảm bảo yêu cầu của khách hàng và đảm bảo được yếu tố phong thuỷ, mẫu nhà hoàn toàn được chủ đầu tư đồng ý xây dựng. Hy vọng, với những chia sẻ vừa rồi của chúng tôi, bạn đọc đã hiểu rõ và có thêm cho mình nhiều ý tưởng thiết kế mới lạ.
HOLINE: 0969.085.669 - 0969.835.669
Nhận xét về sản phẩm
Sản phẩm cùng loại