Nhà cấp 4 là kiểu nhà truyền thống từ xưa đến nay. Ngày nay, kiến trúc xây dựng phát triển nhưng những mẫu nhà này vẫn được ưa chuộng bởi vẻ đẹp của nó. Bằng sự khéo léo của các kiến trúc sư, các mẫu nhà cấp 4 không chỉ đẹp, khang trang mà còn ấn tượng, nổi bật. Việc bố trí công năng cũng khoa học và hợp phong thủy. Dưới đây, Thietkenha24h sẽ cùng bạn tìm hiểu mẫu nhà cấp 4 mái thái tại Vĩnh Phúc do Chất Uy thực hiện.
Chủ đầu tư: Anh Diệp Văn Dũng
Địa chỉ: Trung Mỹ - Bình Xuyên - Vĩnh Phúc
Một trong những mẫu nhà lưu giữ nhiều nét kiến trúc xa xưa của cha ông chính là thiết kế nhà cấp 4. Cùng với những cách tân, tiếp biến thay đổi về hình khối, cách phối hợp màu sắc tạo nên một không gian kiến trúc khá hoàn hảo và đầy sức sống.

Mẫu nhà cấp 4 mái thái khang trang
Hình khối kiến trúc mẫu nhà cấp 4 mái thái khá kiên cố và bền vững. Tuy nhiên vẫn có sự xuất hiện của những nét mềm mại và uyển chuyển. Phần chân tường được ốp gạch sang trọng, tận dụng cùng với thiết kế hệ thống cửa gỗ nhôm kính và khoảng sân trước rộng thoáng, đem đến những cảm quan tích cực cho không gian kiến trúc.

Hệ mái thái kiên cố và bền vững
Kiến trúc mái thái với thiết kế khối mái chữ A, thiết kế có độ dốc thoải lớn, giúp cho việc thoát nước mưa nhanh, hạn chế hiện trạng thấm nước mưa, ảnh hưởng đến kết cấu chung của không gian công trình.
Đồng thời mái thái màu xanh dương đậm được đánh giá là kiểu mái cao thoáng mát về mùa hè, ấm áp về mùa đông. Tính thẩm mỹ thể hiện sự sang trọng của mẫu nhà cao cửa rộng theo chuẩn phong thuỷ của người Việt.
Khoảng sân trước thiết kế cực rộng và thoáng, nổi bật với thiết kế gạch màu đỏ đun truyền thống. Bậc tam cấp thiết kế cao, phần cột hai bên và từng bậc tam cấp được ốp gạch, khoảng hiên chính rộng và thoáng tạo điều kiện cho dòng vượng khí lưu thông đồng đều vào các không gian phía trong.

Bố trí sân vườn rộng rãi
Sự hài hòa trong thiết kế màu sắc cùng với hệ thống cửa kính thiết kế nhiều đố, đón nhận được nhiều thoáng, ánh sáng, đồng thời giúp hiệu ứng thẩm mĩ của công trình cao hơn.
Ngôi nhà chú trọng đến sự thông thoáng, bố trí hệ cửa sổ thoáng mát. Hầu hết tất cả các phòng chức năng đều có cửa sổ.
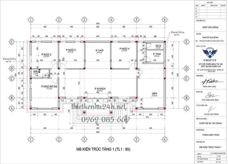
Thiết kế công năng ngôi nhà vô cùng hài hòa. Đáp ứng đầy đủ nhu cầu sử dụng. Mẫu nhà cấp 4 có 4 phòng ngủ, 1 phòng thờ. Rất phù hợp cho những gia đình có đông thành viên.

Thiết kế công năng hài hoà, khoa học
Từ cửa chính vào là không gian phòng khách và phòng thờ được bố trí đối diện.
Phòng khách được bố trí với diện tích hơn 48m2. Một diện tích khá lớn, thể hiện sự bề thế, vô cùng nổi bật của cả không gian. Phòng khách rộng lớn nên việc bố trí cửa chính 4 cánh cũng là điều dễ hiểu.
Không gian phòng bếp được bố trí tách biệt, có cửa rõ ràng. Đối với những công trình có lợi thế về diện tích thường bố trí bếp riêng biệt.
Ngôi nhà với 4 phòng ngủ được thiết kế khá rộng rãi. Phòng ngủ master được thiết kế với diện tích rộng nhất là hơn 17m2. 3 phòng ngủ còn lại có diện tích gần bằng nhau ~ 15m2. Cả công trình bao gồm 2 phòng tắm và nhà vệ sinh giúp cho việc sinh hoạt của cả gia đình được thuận tiện hơn.

Phối cảnh 3D
Để đảm bảo sự thông thoáng cho công trình, ở tất cả các không gian đều được bố trí cửa sổ thoáng mát.
Hy vọng, với chia sẻ của chúng tôi về mẫu nhà cấp 4 mái thái 4 phòng ngủ vừa rồi, bạn đọc đã hiểu rõ hơn và có nhiều ý tưởng thiết kế cho gia đình mình.
HOLINE: 0969.085.669 - 0969.835.669
Nhận xét về sản phẩm
Sản phẩm cùng loại