Mẫu thiết kế nhà cấp 4 4 phòng ngủ 1 phòng thờ tại Lạng Sơn dưới đây được đánh giá thiết kế thông minh trong việc sắp xếp và phân chia các khu vực sử dụng. Không chỉ đảm bảo yếu tố phong thuỷ mà còn đáp ứng được nhu cầu sử dụng các các thành viên trong gia đình. Dưới đây, Thietkenha 24h sẽ giúp bạn khám phá, tìm hiểu mẫu nhà cấp 4 này.

Thiết kế nhà cấp 4 đẹp tại Lạng Sơn
Hầu hết những mẫu nhà cấp 4 hiện đại đều sử dụng thiết kế mái thái với độ dốc lớn, giúp tạo điểm nhấn cho toàn bộ thiết kế ngoại thất của căn nhà. Mái thái của mẫu nhà được thiết kế thành nhiều mái nhỏ nhưng vẫn có sự đối xứng. Giúp tạo vẻ đẹp bề thế và sang trọng cho toàn bộ cấu trúc của căn nhà.
Mẫu nhà thiết kế theo phong cách hiện đại nên những chi tiết trang trí phức tạp đã hoàn toàn bị lược bỏ. Thay vào đó những đường nét trang trí đơn giản và vô cùng vuông vắn. Các chậu hoa treo cùng bồn hoa nhiều màu sắc cũng giúp mặt tiền của nhà cấp 4 trở nên hấp dẫn, nhiều sắc màu hơn.

Thiết kế mái thái có độ dốc lớn
Mẫu nhà cấp 4 sử dụng màu trắng làm gam màu chủ đạo, làm tăng vẻ đẹp sang trọng và bề thế hơn. Mặc dù sử dụng màu trắng nhưng căn nhà không hề có cảm giác mờ nhạt. Khi kiến trúc sư sử dụng các chi tiết kết hợp mang nhiều màu sắc tươi sáng hơn. Chẳng hạn như phần mái thái màu xanh đậm ấn tượng, cùng các mảng tường tối màu và ô của màu nâu cánh gián đẹp mắt. Sự kết hợp màu sắc hài hòa đã giúp thiết kế ngoại thất trở nên hoàn hảo hơn rất nhiều.

Sự kết hợp màu sắc ấn tượng
Những mẫu nhà cấp 4 hiện đại thường có chi phí thiết kế và xây dựng rất rẻ, phù hợp với những cặp vợ chồng mới cưới và ra ở riêng. Tuy nhiên hạn chế của kiểu thiết kế nhà ở này chính là bị hạn chế về mặt diện tích và không gian sinh hoạt. Thế nhưng mẫu nhà cấp 4 đẹp tại Lạng Sơn đã đưa ra phương án thiết kế vô cùng khoa học và giải quyết được vấn đề này. Giúp mang đến không gian sống với đầy đủ các khu vực chức năng, tạo sự thoải mái và thuận tiện khi sinh hoạt cho các thành viên.
Các khu vực chức năng của mẫu nhà cấp 4 tại Lạng Sơn bao gồm:

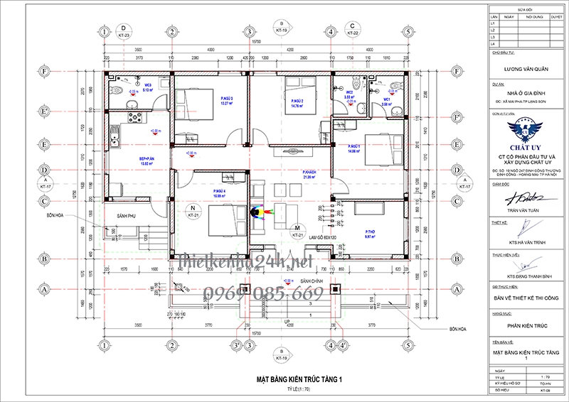
Công năng mặt bằng tầng 1
Từ cửa chính vào sẽ là khu vực phòng khách được bố trí khoa học, ngay bên phải phòng khách là phòng thờ. Hai khu vực được ngăn cách với nhau bởi vách ngăn kín đáo đảm bảo không gian yên tĩnh cho khu vực thờ cúng tổ tiên.Tiếp đến là các phòng ngủ được thiết kế cạnh nhau với diện tích hợp lý. Mỗi phòng ngủ đều có cửa sổ lớn, giúp tạo sự thông thoáng cho không gian nghỉ ngơi của các thành viên. Đặc biệt phòng ngủ số 1 và số 2 còn được thiết kế nhà vệ sinh và nhà tắm riêng ngay ở trong phòng. Mang đến sự thuận tiện và thoải mái khi sử dụng, cũng như đảm bảo không gian sinh hoạt cho mọi thành viên.
Phòng bếp và phòng ăn của được thiết kế ở cuối hành lang nhà, bên cạnh phòng ngủ số 3 và số 4. Ở bếp cũng có cửa ra vào ở phía sau nhà, tạo nên sự thông thoáng. Ngoài ra thì khu vực nhà tắm và nhà vệ sinh chung cho toàn bộ căn nhà cũng được thiết kế ở trong khu vực bếp.

Nhà tắm và nhà vệ sinh chung được thiết kế gần bếp
Như vậy, trong bài viết trên chúng tôi đã cung cấp đến các bạn những thông tin vô cùng chi tiết liên quan đến mẫu thiết kế nhà cấp 4 đẹp tại Lạng Sơn. Hy vọng sau khi tham khảo bài viết trên các bạn sẽ có thêm nhiều hiểu biết và kinh nghiệm trong việc thiết kế những mẫu nhà cấp 4 hiện đại và sang trọng cho gia đình mình.
HOLINE: 0969.085.669 - 0969.835.669
Nhận xét về sản phẩm
Sản phẩm cùng loại